Estudio de ingeniería de detalle para proyecto de Calefacción Distrital en Coyhaique
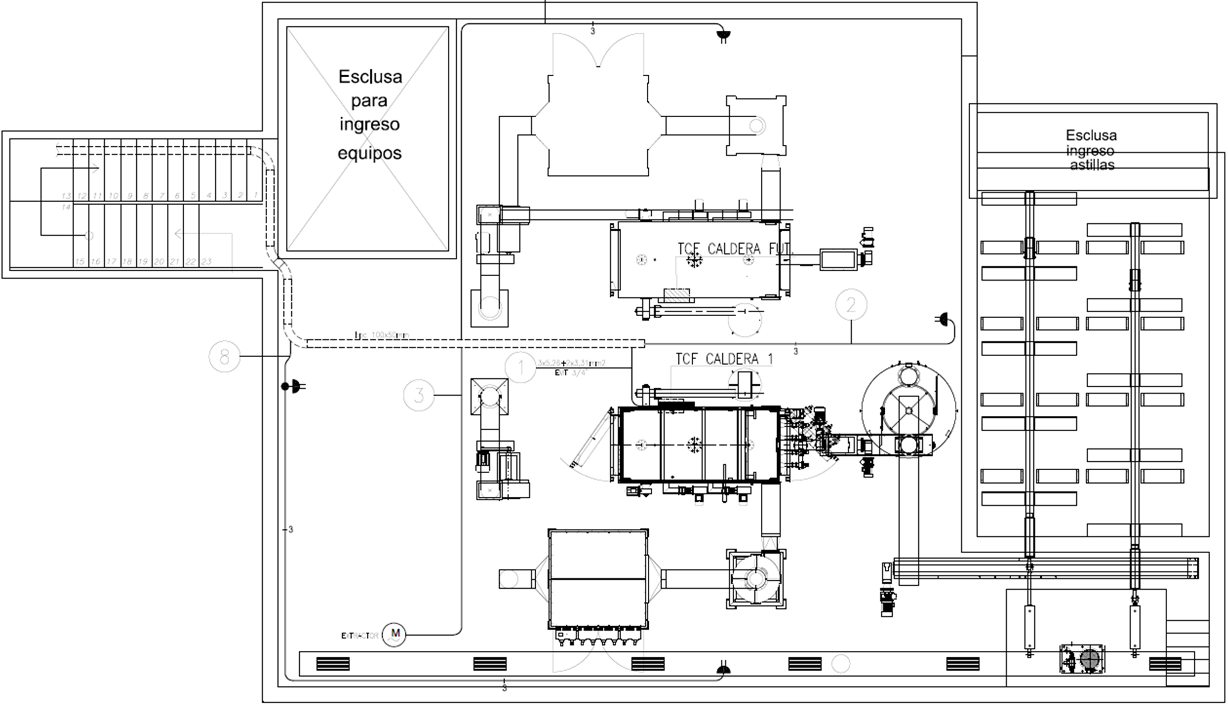
EBP desarrolló la ingeniería conceptual, básica y de detalle para el proyecto de Calefacción Distrital en el Sector Escuela Agrícola de Coyhaique, involucrando a diversas instituciones públicas como beneficiarias del proyecto.
Coyhaique es la ciudad que presenta los mayores problemas de contaminación atmosférica a nivel nacional, fundamentalmente por el mal uso de leña para calefacción.
Considerando que la calefacción distrital es capaz de disminuir hasta el 99% del material particulado emitido para concepto de generación de calor, se ha considerado esta tecnología como una solución para la capital regional de Aysén. Es así que fue uno de los proyectos incluidos en el plan de acción de la Estrategia Energética Local (EEL) de la comuna.

El trabajo ha considerado el desarrollo de la ingeniería de detalle para el proyecto de Calefacción Distrital en el Barrio Cívico del sector Escuela Agrícola de Coyhaique. Se han propuesto modelos de negocios robustos y una propuesta de valor atractiva para los potenciales clientes, validando la factibilidad técnica y económica para una de las ciudades más extremas del país.